Foto leveres af Google Street View og kan være upræcist:
Butik til leje, Højbjerg, Rundhøjtorvet 3A
Rundhøjtorvet 3A, 8270 Højbjerg- Butik til leje
- 1.098 m2
- 89.975 kr. per måned
Rundhøjtorvet 3A, 8270 Højbjerg
- Butik til leje
- 1.098 m2
- 89.975 kr. per måned
Få mere info
Du linkes til en anden portal, som evt. kan kræve betaling eller oprettelse
Butik til leje, Højbjerg, Rundhøjtorvet 3A
Fakta
- 312329
- Butik
- Kontor
- 1.098 m2
- 1.079.696,34 - 1.079.700 kr.
- 89.975 kr.
- 983,33 kr.
Nyistandsat butiks-/restaurantlokale
• Helt revitaliseret Rundhøjtorv
• Rummeligt butiks/showroom lokale
• Stærke naboer
• Bred transparent glasfacade
• Gode parkeringsfaciliteter
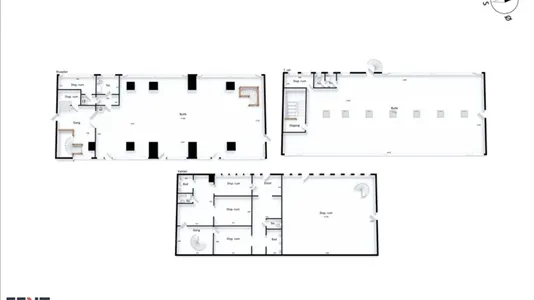
På det kendte Rundhøjtorv ligger dette store og rummelige butikslokale, som ligeledes kan anvendes til Showroom. Med adgang direkte ud mod torvet og de store p-pladser, kommer man direkte ind i det store rummelige salgslokale.
Salgslokalet har en stor og bred glasfacade med aluminiumspartier og er rummeligt og let indretteligt. Her er en fin loftshøjde både i underetage, 1. sal og stueetage. Gulvene og lejemålet generelt bærer præg af at have været anvendt til fitness, men udlejer er modtagelig for en drøftelse af istandsættelse. I stueetagen er der, udover et par disponible rum, nedgang til underetage og opgang til 1. sal.
Første sal rummer, udover et disponibelt rum, toilet samt et stort lokale med fine ovenlysvinduer.
Underetagen, der tidligere har været anvendt primært til omklædning og toiletfaciliteter, indeholder toiletter, badefaciliteter, disponible rum samt et større lokale der kan anvendes til salgsareal eller lager.
I bund og grund fremstår lejemålet pænt, og lejer vil kunne have indflydelse på istandsættelsen.
Anvendelsen er naturligvis detail, men der vil også kunne indrettes til showroom og lignende formål.
• Rummeligt butiks/showroom lokale
• Stærke naboer
• Bred transparent glasfacade
• Gode parkeringsfaciliteter
På det kendte Rundhøjtorv ligger dette store og rummelige butikslokale, som ligeledes kan anvendes til Showroom. Med adgang direkte ud mod torvet og de store p-pladser, kommer man direkte ind i det store rummelige salgslokale.
Salgslokalet har en stor og bred glasfacade med aluminiumspartier og er rummeligt og let indretteligt. Her er en fin loftshøjde både i underetage, 1. sal og stueetage. Gulvene og lejemålet generelt bærer præg af at have været anvendt til fitness, men udlejer er modtagelig for en drøftelse af istandsættelse. I stueetagen er der, udover et par disponible rum, nedgang til underetage og opgang til 1. sal.
Første sal rummer, udover et disponibelt rum, toilet samt et stort lokale med fine ovenlysvinduer.
Underetagen, der tidligere har været anvendt primært til omklædning og toiletfaciliteter, indeholder toiletter, badefaciliteter, disponible rum samt et større lokale der kan anvendes til salgsareal eller lager.
I bund og grund fremstår lejemålet pænt, og lejer vil kunne have indflydelse på istandsættelsen.
Anvendelsen er naturligvis detail, men der vil også kunne indrettes til showroom og lignende formål.
Information og data
Dette butikslejemål, som også kan anvendes til Kontor ligger på Rundhøjtorvet i Højbjerg. Højbjerg har postnummeret 8270, og ligger i kommunen Aarhus, som ligger i Århus. Lokalet er i alt 1098 m2. Lejepris: 1.079.700 kr. per år.